Loading images...

3
1
1
Semi Detached
| Property Status | Sale Agreed |
| Offers Around | £175,000 |
| Property Type | Semi Detached |
| Tenure | Leasehold |
| Rates | 1134 |
| Heating | Oil |
| Energy Rating/EPC | E52 |
| Potential Energy Rating | D65 |
Finished and presented to an exacting modern standard, this attractive home is found in a quiet cul-de-sac within a popular private development on the Ballymena side of Ahoghill village.
Ideal for the first time buyer who can acquire a low maintenance home in superb condition, the property has a contemporary finish and comprises well proportioned accommodation.
Positioned on a low maintenance site with an excellent level of privacy, there is off street parking for three vehicles to the front of the detached garage. The rear is fully enclosed and flagged for easy upkeep, with an eye catching covered decked area from the dining area, perfect for outdoor entertaining.
A short walk from a range of amenities, Ballymena is found a short drive away via the Galgorm Road, and provides easy access to main commuter roads.
Please contact our office for viewing arrangements.
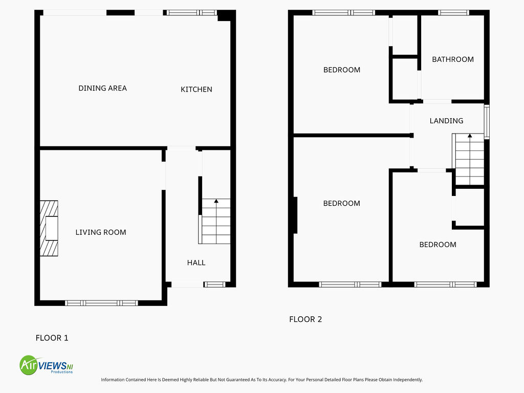
Ground floor
Hallway :- Laminate wooden flooring. Balustrade staircase with storage. Glass panelled doors to Lounge and Kitchen.
Lounge 4.47m x 3.57m (14’8’’ x 11’8’’) :- Adam style fireplace with tiled inset and hearth. Laminate wooden flooring.
Kitchen/Dining 5.46m x 3.75m (17’11’’ x 12’4’’) :- Includes range of eye and low level units. Stainless st...
© 2025 ToFindProperty.com